您现在所在的位置 : 首页 > 政务公开 > 规划计划
分享到:
索引号: 4311280016/2025-01416 分类:  
发文机关: 发文日期: 2024-01-19
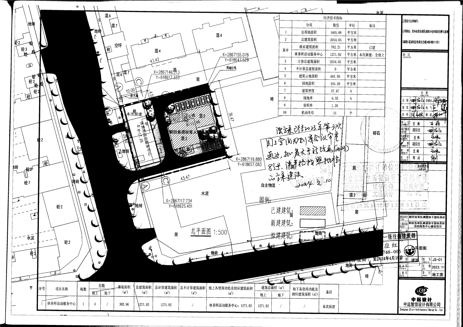
名称: 新田县退役军人事务局建设工程规划许可批后公布
文号 :    
新田县退役军人事务局建设工程规划许可批后公布
  • 2024-01-19 17:30
  • 来源: 新田县自然资源局
  • 【字体:   




扫一扫在手机打开当前页
相关链接
各省市政府
市州政府
县区管理区网站
站群导航
网站地图 | 联系我们 | 政务邮箱:xtgovment@126.com

主办:新田县人民政府办公室    承办:新田县数据局(新田县行政审批服务局)    
技术支持:0746-4767803(仅受理网站建设维护相关事宜)
网站标识码:4311280016    湘ICP备10010030号    湘公网安备 43112802000004号

  • 湖南省政府网
  • 永州市人民
    政府网
  • 三湘e监督
  • 监督一点通