|
永州市零陵区退役军人事务局 关于划定永州市烈士纪念园烈士纪念设施保护范围的公告 零退役军人发〔2024〕3号 LLDR—2024—24001
根据《中华人民共和国英雄烈士保护法》《烈士褒扬条例》《烈士纪念设施保护管理办法》以及中央、省、市对烈士褒扬工作的重要指示精神,为高质量做好烈士纪念设施保护和管理工作,进一步规范服务内容,提高管理水平,经区人民政府同意,现将永州市烈士纪念园烈士纪念设施保护范围和保护内容向社会公告如下: 一、划定烈士纪念设施保护范围 范围以永州市烈士纪念园烈士纪念设施保护红线图划定的范围为准(见附件)。 二、烈士纪念设施保护内容 永州市烈士纪念园烈士纪念设施保护红线图内,包括但不限于纪念广场、英烈墙、纪念碑、烈士纪念馆等纪念设施以及上述保护范围内的其它附属设施均属于烈士纪念设施保护内容,今后在保护范围内修建纪念设施和其它附属设施均纳入同等保护内容。 任何组织和个人不得在烈士纪念设施保护范围内从事与纪念英烈无关或有损纪念英烈环境氛围的活动,不得侵占烈士纪念设施保护范围内的土地和设施,不得破坏、污损烈士纪念设施,确保烈士纪念设施庄严、肃穆、清净的环境和氛围。违反有关规定的,由相关部门依法处理。 本公告自公布之日起施行,有效期十年。
永州市零陵区退役军人事务局 2024年12月4日
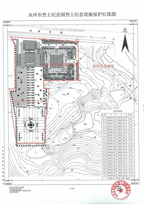
附件:永州市烈士纪念园烈士纪念设施保护红线图
|
| 索引号: | 431102009/2024-16968 | 发文日期: | 发布机构: | 零陵区政府办 | |
| 公开方式: | 主动公开 | 公开范围: | 面向社会 | 主题词: | 纪念设施保护范围 |
| 统一登记号: | LLDR—2024—24001 | 信息时效性: | 有效 | 文号 : | 零退役军人发〔2024〕3号 |
永州市零陵区退役军人事务局关于划定永州市烈士纪念园烈士纪念设施保护范围的公告
扫一扫在手机打开当前页
网站首页
零陵概况
政务公开
办事服务
政民互动
热点专题
数据发布
您现在所在的位置 : 


湘公安网备43110202000118









